Parkside FV

Project Location: 8550 Warner Avenue, Fountain Valley

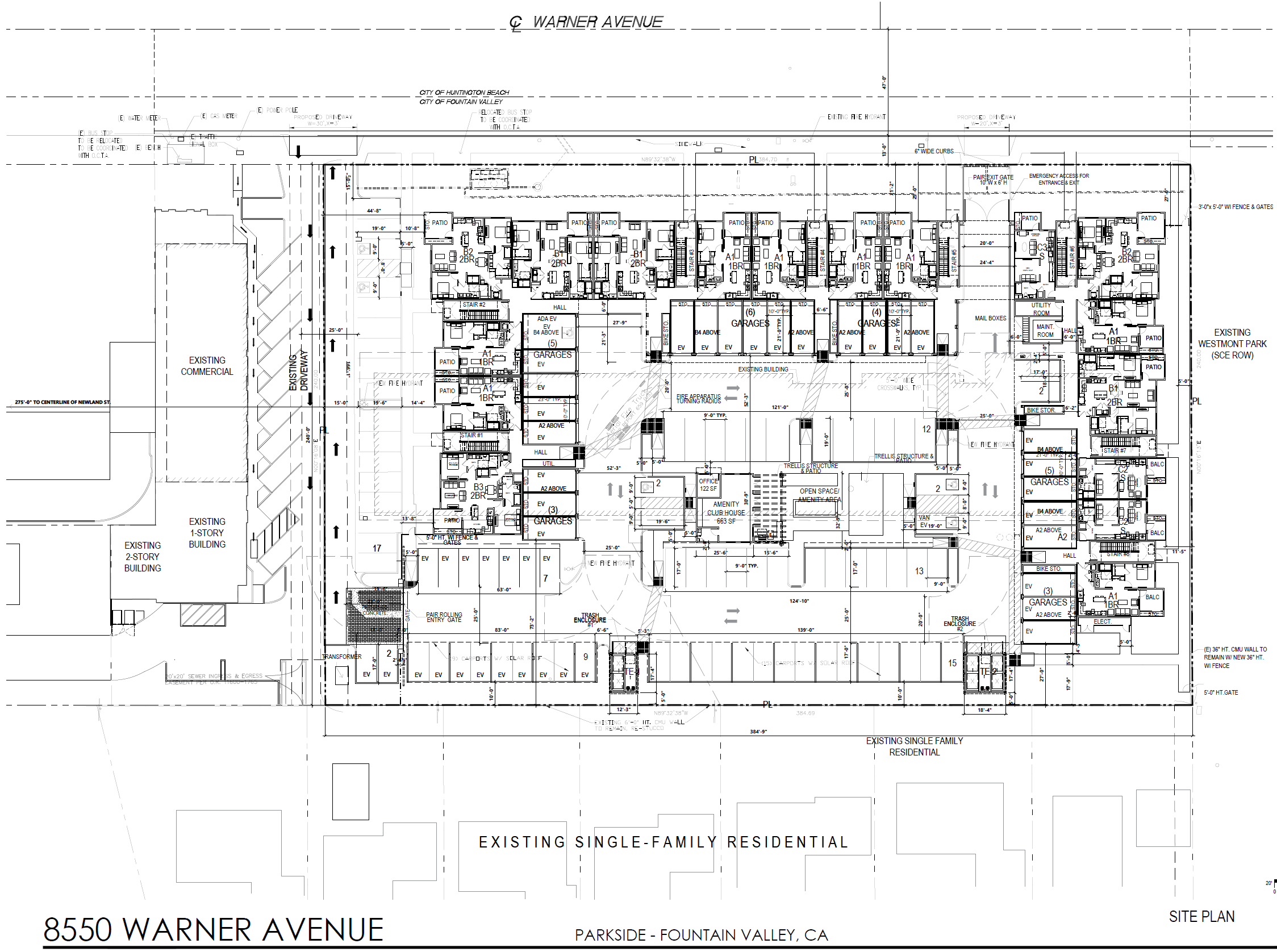
  1. 1 8550 Warner Site Plan
  2. 2 Page 4
  3. 3 North / West Elevation: Warner Ave
  4. 4 North / West Aerial View
  5. 5 North / East Elevation: Warner Ave
  6. 6 8550 Warner picture
  7. 7 South West Ariel View Parkside

The Parkside FV project includes the Redevelopment of the existing 2.119 acre site with an existing 18,782 square foot commercial center into a new 3-story 72 unit apartment complex comprised of nine (9) studio units, 37 one-bedroom units, and 26 two-bedrooms units. The project will include 83 surface parking spaces and 26 garage parking spaces. Requested entitlements include a General Plan Amendment from Local Commercial to High Density Residential, a Zoning Map Amendment from C1 Local Business to R4 High Density Residential, a Precise Plan and Conditional Use Permit for the construction of the building and site layout, and a Density Bonus and Affordable Housing Agreement for a 15% Density Bonus and 15% affordable units.

Related Documents

NOTICE OF INTENT TO ADOPT A MITIGATED NEGATIVE DECLARATION AND NOTICE OF PUBLIC HEARING

PUBLIC REVIEW: The MND is available for a 30-day public review period beginning January 14, 2026, and ending February 13, 2026. 
AGENCY/PUBLIC COMMENTS: Written comments on the MND for the proposed project must be received no later than February 13, 2026.
Send comments by mail to: City of Fountain Valley

Planning and Building Department
10200 Slater Avenue
Fountain Valley, California 92708
Attention: Steven Ayers, Principal Planner

Or by email to planning.building@fountainvalley.gov
(please include the name of the project in the subject heading)

MND cover page8550 Warner Avenue Project Initial Study - Mitigated Negative Declaration
Appendices
Appendix A  CalEEMod Results
Appendix B  Transportation Screening Assessment
Appendix C  Construction Health Risk Assessment
Appendix D  Cultural Resources Assessment
Appendix E  GeoTechnical Engineering Investigation
Appendix F  Water Quality Management Plan
Appendix G  Noise Measurement Data and Modeling
Appendix H  Fountain Valley School District Will-Serve Letter

Contact:

Project Planner:  Steven Ayers
Steven.Ayers@fountainvalley.org